|
|
|||||||||||||||||||||
ビル群の谷間に潜む、三の丸の古民家 |
||||||||||||||||||||||
|
||||||||||||||||||||||
|
||||||||||||||||||||||
|
||||||||||||||||||||||
|
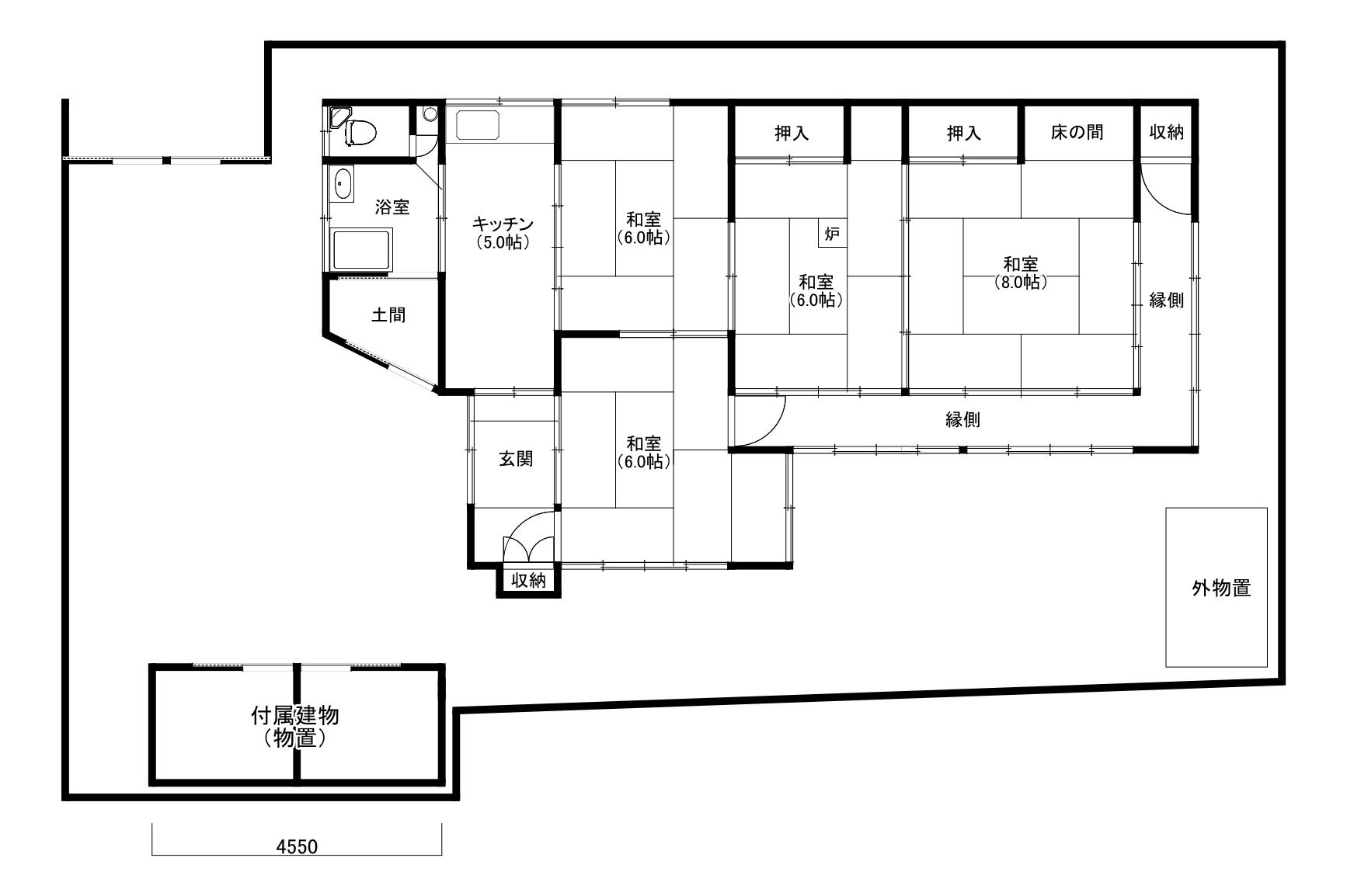
山形駅から徒歩約8分。 山形市幸町のビル群の谷間に、まるで時の流れからそっと取り残されたような古民家が静かに息をしている。 この物件、実は山形の歴史を語るうえでも、ちょっと特別な立地に建っている。 すぐ近くには「三の丸石垣跡」と呼ばれる史跡が残る。 三の丸とは、山形城を中心に外側をぐるりと囲んだ防御ライン。石垣からなる巨大な輪郭で、周囲はおよそ6.5kmに及んだとも言われる。 その三の丸の内側こそが、かつての山形城の敷地だった。 そして面白いのは、この物件との距離感だ。 敷地の裏手が一段高くなっていて、そこには古い石垣が積まれている。近くの三の丸石垣跡から、そのまま延びてきた“地形の名残”に見える。 歴史のレイヤーが町割りに溶け込み、その境界線がそのままこの敷地を形づくっている、そんな感覚だ。 物件へ向かう道もユニーク。 近くの神社の参道が、そのままこの建物へのアプローチとなっている。道幅は決して広くないが、車の出入りは問題なし。 敷地の入口には立派な門構えが鎮座し、街の喧騒とは別世界の、どこか“隠れ家料亭”のような趣きを漂わせている。 周囲を見渡せばビルが林立していて、その異質さがかえって際立つ。 玄関を入ると、まず迎えてくれるのは土間とキッチン。 設備関係はリフォームされた形跡はあるものの、建物自体は間違いなく古民家。建築年月日は不詳だが、空気感がすべてを物語っている。 室内は田の字プランの平屋で、真ん中の和室の畳をめくると炉が現れる。 浴室は土間仕様で、脱衣所もなくキッチンに直結。 キッチンの床材も当時ものの風合いがしっかりと残っている。 「磨けば光る」。そんな魅力にあふれつつも、状態は決して良いとは言えない。 給湯など動きそうな設備もあるが、基本的には現状で借りていただく前提。 畳の歪み、建物の経年劣化、隙間風……どれも含めて“ありのまま”。 今回の募集スタイルは、いわば「お好きにどうぞ」スタイル。 貸主側での手入れは最低限。 借りる方が好きなように手を加え、そのまま使ってもらえればいい。 ギャラリーでも、カフェでも、レストランでも。 もちろん事務所でもOK。 なんたって、山形駅から徒歩8分。 周囲のビル群が、その立地の良さを証明している。 現状貸しだからこその控えめな賃料で、“好きなようにリノベできる古民家”が手に入る。 あなたなら、この歴史の端っこにある隠れ家を、どう料理しますか? |
![]() |
|
| 突き当たりの奥に静かに佇む門。この先が今回の物件です。 |
|
| 一見コンパクトな平屋。でも中に入ると意外な広さ。 |
|
| 薄暗い和室が逆に良い。光の入り方も古民家ならでは。 |
|
| キッチンの床は当時もの。味があって、これがまたいい。 |
|
|
| >>大きな地図で見る  |
| 賃料 | 5万円 | 建物面積 | 81.13㎡ |
| 敷金 | 2ヶ月 | 礼金 | なし |
| 償却 | なし | 管理費 | なし |
| 所在地 | 山形県山形市幸町 | ||
| 交通 | 奥羽本線 山形駅 徒歩8分 | ||
| 建物構造 | 木造 1階建て | 所在階 | |
| 築年 | 築年不詳 | 取引態様 | 媒介 |
| 設備 | キッチン/トイレ/バス/ | ||
| 備考 | 現状貸し。畳や建物は経年劣化があります。/築年不詳の古民家。/設備は一部使用可能ですが、貸主による改修なし。/室内リフォーム・改装自由。/ギャラリー、カフェ、事務所等に最適。/維持管理・修繕は借主負担となります。/要火災保険契約 | ||
| 情報修正日時 | 2025年11月20日 | 情報更新予定日 | 2025年12月10日 |
あなたにおすすめの物件


